Будьте всегда в курсе!
Узнавайте о скидках и акциях первым
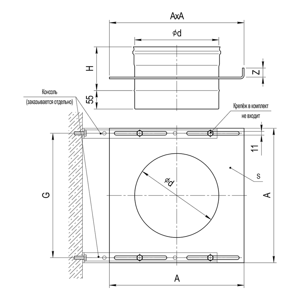
Предназначена для распределения вертикальной нагрузки на опорную конструкцию.
Элемент изготовлен из нержавейки марки 430 с толщиной 0,8 мм.
H - 125 мм
A - 210 мм
G - 180 мм
z -0
Диаметр дымохода, мм | 150 |
Вес, кг | 0,81 |
Материал изготовления | сталь |
Хотите знать, во сколько обойдется реализация индивидуального проекта, или вам нужно мнение специалиста по вопросам демонтажа старого оборудования либо установки нового? Чтобы получить грамотный совет, воспользуйтесь услугой выезда мастера на консультацию.