Будьте всегда в курсе!
Узнавайте о скидках и акциях первым
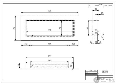
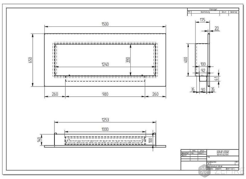
Размеры (ВxШxД) | 650х1500х176 |
Цвет | Белый |
Тип топлива | Биотопливо |
Материал изготовления | сталь |
Стиль | модерн |
Хотите знать, во сколько обойдется реализация индивидуального проекта, или вам нужно мнение специалиста по вопросам демонтажа старого оборудования либо установки нового? Чтобы получить грамотный совет, воспользуйтесь услугой выезда мастера на консультацию.
Для того чтобы ваша печь или каминная топка работали максимально эффективно, их необходимо правильно установить. Монтажники интернет-магазина «ПечкинЪ» произведут полный спектр работ по монтажу печей, каминов и дымоходов в Нижнем Новгороде по привлекательным ценам.