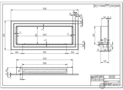
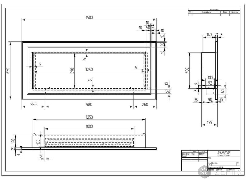
Биокамин Zefire Sirius 1500
- Объем топки: 53 л;
- Цвет: Черный, Металлик;
- Форма: Прямоугольный;
- Габариты ВхШхГ:650х1500х176 мм;
- Линия огня: 900 мм;
- Материал:Сталь в порошковой окраске;
- Тип биокамина: Настенный, Встраиваемый;
- Тип управления: Мануальный (ручной)
Описание
Sirius 1500 отечественной торговой марки ZeFire – масштабная модель встраиваемого настенного биокамина с оригинальным дизайном и простым мануальным управлением. Декоративный очаг размером 650х1500 см напоминает рамку картины, однако вместо произведения искусства интерьер украшает живое пламя без дыма, копоти и гари. Благодаря этой особенности биокамин не нуждается в дымоходе и других сложных коммуникациях.
Топка для биокамина Sirius 1500 (ZeFire) изготовлена из шлифованной нержавеющей стали. Внутреннее пространство стального декоративного очага покрыто порошковой огнеупорной краской, импортированной из Германии. Элементы такого декоративно-защитного покрытия присутствуют также на «раме» очага. «Сердцем» устройства является горелка с линией огня длиной 900 мм и топливной емкостью 5,3 л. Эти рабочие характеристики обеспечивают непрерывное горение пламени на протяжении 5-6 часов.
Характеристики
Размеры (ВxШxД) | 650х1500х176 |
Цвет | Серый |
Тип топлива | Биотопливо |
Материал изготовления | сталь |
Стиль | модерн |
Услуги
Хотите знать, во сколько обойдется реализация индивидуального проекта, или вам нужно мнение специалиста по вопросам демонтажа старого оборудования либо установки нового? Чтобы получить грамотный совет, воспользуйтесь услугой выезда мастера на консультацию.
Для того чтобы ваша печь или каминная топка работали максимально эффективно, их необходимо правильно установить. Монтажники интернет-магазина «ПечкинЪ» произведут полный спектр работ по монтажу печей, каминов и дымоходов в Нижнем Новгороде по привлекательным ценам.










