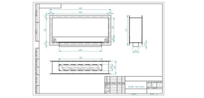
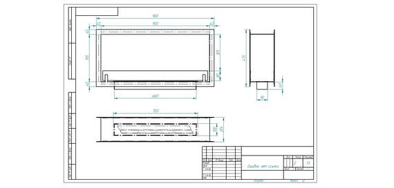
Биокамин Zefire сквозной Standart 900
- Объем топки: 3,5 л;
- Цвет: Черный (возможен другой цвет за доплату);
- Форма: Прямоугольный;
- Габариты ВхШхГ: 475х980х204 мм;
- Линия огня: 600 мм;
- Материал: Сталь в порошковой огнеупорной краске, топка - шлифованная нержавеющая сталь, закаленное стекло;
- Тип биокамина: Встраиваемый;
- Тип управления: Мануальный (ручной);
- Возможная ширина биокамина: любая на заказ.
Описание
Сквозной биокамин Standart 900 от российского бренд ZeFire – выбор тех, кто задает тренды, а не воспроизводит их. Из всех встраиваемых очагов Standart это, пожалуй, самый нестандартный вариант. Но не в смелости его главный плюс: двусторонний биокамин украшает живым огнем сразу две комнаты, не занимая в них места.
Встроить такой огненный «аквариум» можно в перегородку из негорючих материалов (кирпича, бетона, пеноблоков и т. п.), короб из гипсокартона и даже стеллаж их МДФ (в этом случае потребуется несложная теплоизоляция).
Особенность сквозных экокаминов – в отличие от фронтальных, угловых и торцевых – заключается в том, что монтировать их нужно в процессе возведения стены, а не в уже готовую. Усиливать конструкцию и подводить к камину какие-то коммуникации не придется.
Рассчитать нужные параметры очага можно самостоятельно. Так, его глубина будет равна толщине перегородки. Ширину лучше брать такую, чтобы по бокам оставалось по 20 см стены или более. Минимальная высота – 25 см, иначе языки пламени будут «упираться» в верхнюю плоскость.
Профессиональные дизайнеры заказывают сквозной биокамин Standart для зон отдыха в тех локациях, где шумоизоляция не стоит на первом месте. Например, для стены между кухней и гостиной, ванной и спальней и др. Хорошо вписывается такое решение в дизайн квартиры-студии в индустриальных стилях: минимализм, хай-тек и лофт. Лаконичный вид камина из стали и закаленного стекла сочетается практически с любой отделкой – от камня до обоев.
В жилом интерьере двусторонний экокамин становится не только эффектным украшением. С его помощью также можно решить такие проблемы, как недостаток света и плохая вентиляция комнаты. Или скрыть недочеты планировки: сделать стену визуально уже или шире, поднять или опустить потолок.
Характеристики
Размеры (ВxШxД) | 475х980х204 |
Цвет | Черный |
Тип топлива | Биотопливо |
Материал изготовления | сталь |
Стиль | модерн |
Услуги
Хотите знать, во сколько обойдется реализация индивидуального проекта, или вам нужно мнение специалиста по вопросам демонтажа старого оборудования либо установки нового? Чтобы получить грамотный совет, воспользуйтесь услугой выезда мастера на консультацию.
Для того чтобы ваша печь или каминная топка работали максимально эффективно, их необходимо правильно установить. Монтажники интернет-магазина «ПечкинЪ» произведут полный спектр работ по монтажу печей, каминов и дымоходов в Нижнем Новгороде по привлекательным ценам.








