EMBER Отопительная печь София 552 XL
Ember 552 XL - это не просто дровяная печь, а настоящее произведение искусства, сочетающее в себе элегантный дизайн и высокую эффективность. Создайте уют и комфорт в своем доме, наслаждаясь красивыми огненными пейзажами и инновационными технологиями.
Особенности и преимущества:
Современный дизайн: Корпус печи изготовлен из стали, что придает ей современный и стильный внешний вид. Панорамное стекло декорированное в дверце создает уют и позволяет наслаждаться огнем с разных точек комнаты.
Тепло быстро и эффективно: Стальные печи быстро прогревают воздух в помещении, обеспечивая комфорт в течение всего дня. Ember 552 XL начинает давать тепло всего через 15 минут после растопки.
Безопасность и эффективность:Печь оснащена системой "Чистое Стекло", предотвращающей накопление копоти и обеспечивающей четкость обзора на пламя. Эффективная система "Вторичного Дожига" обеспечивает максимальную экономию дров и высокую теплоотдачу.
Панорамное стекло: Дверца печи остеклена панорамным стеклом, увеличивая площадь обзора на 20%. Позвольте себе погрузиться в атмосферу тепла и света, создаваемую этим элегантным элементом.
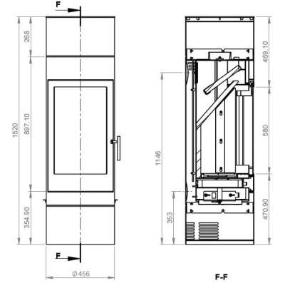
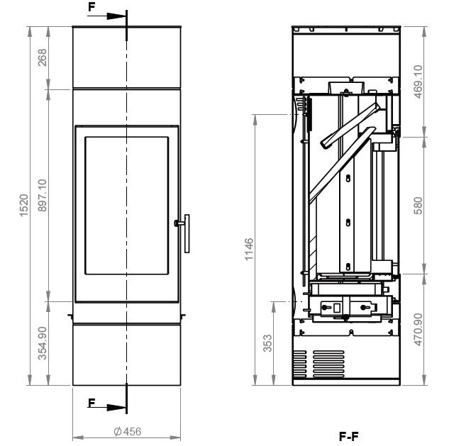
Технические характеристики:
- Размеры: Высота - 1520 мм, Ширина - 460 мм, Глубина - 460 мм.
- Вес: 140 кг - не требует строительства фундамента, достаточно специального листа с изоляцией.
- Дизайн: Цилиндрическая форма позволяет установить печь у стены или в угол.
Создайте прекрасную атмосферу в вашем доме с печью-камином Ember 552 XL. Отблески огня и запах дымка добавят хороших воспоминаний и романтики. Печь подарит вам не только тепло, но и визуальное наслаждение, став центральным элементом вашего интерьера.
Характеристики
Номинальная мощность | 6,5 |
КПД, % | 80 |
Отапливаемая площадь, м2 | до 70 |
Диаметр дымохода, мм | 150 |
Подключение к дымоходу | верхнее/заднее |
Длина полена | 330 |
Вес, кг | 140 |
Размеры (ВxШxД) | 1520х460х460 |
Покрытие | без эмали |
Тип топлива | дрова |
Материал изготовления | сталь |
Стиль | модерн |
Форма стекла | панорамное |
Услуги
Хотите знать, во сколько обойдется реализация индивидуального проекта, или вам нужно мнение специалиста по вопросам демонтажа старого оборудования либо установки нового? Чтобы получить грамотный совет, воспользуйтесь услугой выезда мастера на консультацию.
Для того чтобы ваша печь или каминная топка работали максимально эффективно, их необходимо правильно установить. Монтажники интернет-магазина «ПечкинЪ» произведут полный спектр работ по монтажу печей, каминов и дымоходов в Нижнем Новгороде по привлекательным ценам.









