Кухня Astov BBQ № 11 (ширина 3330 мм)(готовое решение)
Характеристики:
Материал корпуса: Оцинкованная сталь;
Материал фасада: Оцинкованная сталь;
Цвет корпуса: RAL9005;
Цвет фасадов: RAL9005;
Производитель: ASTOV BBQ;
Фурнитура: Германия.
Параметры:
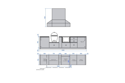
1. Пилястра с регулируемыми ножками 50 мм
2. Модуль для хранения с дверью и полкой 600 мм (левый)
3. Модуль для керамического гриля 700 мм
4. Модуль с крючками 200 мм
5. Дровяная печь под казан 9 л с доборной пластиной
6. Модуль для хранения с 3мя ящиками 500 мм
7. Модуль для установки мойки 600 мм (правый)
8. Пилястра с регулируемыми ножками 50 мм
9. Вытяжной зонт 1650х900х1300 мм без подсветки
В комплектацию кухни Астов №11 НЕ ВХОДИТ столешница, мойка, смеситель, керамический гриль, фартук. Их можно заказать отдельно.
Пилястра с регулируемыми ножками 50 мм.
Модуль для хранения с дверью и полкой 600 мм (левый).
Модуль для керамического гриля 700 мм.
Модуль с крючками 200 мм.
Дровяная печь под казан 9 л с доборной пластиной.
Модуль для хранения с 3мя ящиками 500 мм.
Модуль для установки мойки 600 мм (правый).
Пилястра с регулируемыми ножками 50 мм.
Вытяжной зонт 1650х900х1300 мм без подсветки.
Корпус и фасады выполнены из оцинкованной стали толщиной 1 мм. Фасады двухконтурные толщиной 20 мм. с шумоизоляцией.
Фурнитура BLUM/HETTICH
Корпус и фасады покрашены порошковой краской, цвет RAL9005* (муар)
*- Цвет продукции на экране монитора и в печатных материалах может отличаться от реального
Дополнительно в кухонный гарнитур можно установить:
1. Бутылочница;
2. Пицца печь 1000 мм (Русская печь) без дровника;
3. Модуль открытый для хранения.
Уважаемые покупатели! Цены на изделия уточняйте на момент покупки, т. к. возможны изменения!
Услуги
Хотите знать, во сколько обойдется реализация индивидуального проекта, или вам нужно мнение специалиста по вопросам демонтажа старого оборудования либо установки нового? Чтобы получить грамотный совет, воспользуйтесь услугой выезда мастера на консультацию.
Для того чтобы ваша печь или каминная топка работали максимально эффективно, их необходимо правильно установить. Монтажники интернет-магазина «ПечкинЪ» произведут полный спектр работ по монтажу печей, каминов и дымоходов в Нижнем Новгороде по привлекательным ценам.













